Bought with Non Member Office • NON-MLS MEMBER OFFICE
$250,000
$275,000
9.1%For more information regarding the value of a property, please contact us for a free consultation.
14855 17 Mile Road Rodney, MI 49342
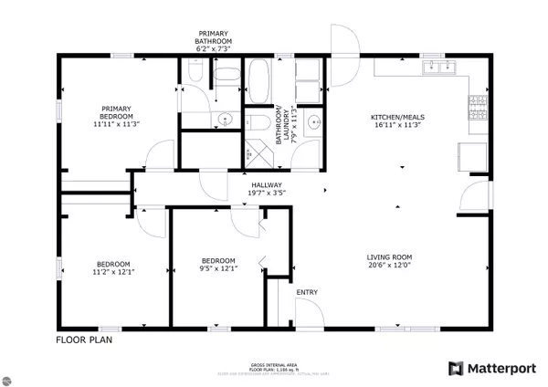
3 Beds
2 Baths
1,186 SqFt
Key Details
Sold Price $250,000
Property Type Single Family Home
Sub Type Residential
Listing Status Sold
Purchase Type For Sale
Square Footage 1,186 sqft
Price per Sqft $210
Subdivision Mi
MLS Listing ID 1913534
Sold Date 09/12/23
Style Ranch,1 Story
Bedrooms 3
Full Baths 2
Year Built 2004
Lot Size 1.110 Acres
Acres 1.11
Lot Dimensions 401x130
Property Sub-Type Residential
Property Description
Beautiful Country Living in Rodney! This 3 bedroom, 2 bathroom, 1,186 sqft ranch is the perfect home to enjoy peaceful surroundings! Property includes 1 parking spot and a private pond frontage with wooded surroundings. Sit back and relax on your own private retreat or take advantage of the barn and host outdoor gatherings. Enjoy close proximity to town plus all the amenities in nearby Big Rapids. Don't miss out on this amazing opportunity!
Location
State MI
County Mecosta
Rooms
Basement Crawl Space
Master Bedroom 11.11x 11.3
Bedroom 2 11.2x 12.1
Bedroom 3 9.5x 12.1
Living Room 20.6x 12
Kitchen 16.11x 11.3
Interior
Interior Features Other
Heating Forced Air
Cooling Forced Air
Exterior
Exterior Feature Deck, Other
Roof Type Composite
Road Frontage Other
Building
Water Private Well
Structure Type Vinyl
Schools
School District Big Rapids Public Schools
Others
Tax ID 06010008000
Ownership Private Owner
Read Less
Want to know what your home might be worth? Contact us for a FREE valuation!

Our team is ready to help you sell your home for the highest possible price ASAP






